近日,2021年AMP美国建筑大师奖公布获奖结果,由中技集团饶承东团队设计的北京佳莲学校(北京四中国际课程佳莲校区)项目从全球数千份申报项目中脱颖而出,荣获荣誉奖,获得国际认可。

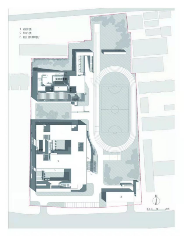
北京佳莲学校项目位于北京市昌平区南口镇,用地规划2.26万平方米,建筑面积6321平方米,项目设计方案完美解决了高度压缩的“微型校园”难题,弱化了对单一功能、单一流线的限定,让更多使用方式、更多自由选择、更多偶发交往,更多“即兴演出”成为可能,让有限的物理空间得到了更充分的使用;设计方案成功将校方要求的营地教育理念深度融入传统学校教育模式之中,以更全面地为学生的整体成长服务。




美国建筑大师奖 (The Architecture MasterPrize,简称:AMP)前身为AAP建筑奖,立志成为业内最有威望的赛事之一,并为全球建筑和设计行业树立新的标杆。该赛事旨在表彰全球最优秀、最具创意的建筑、室内和景观项目,展现和宣传杰出的设计人才,并突出建筑艺术及科学对于丰富我们日常生活的意义。
此次获得AMP美国建筑大师奖荣誉奖是对中技集团设计实力的再次肯定,中技集团将持续发挥30余年建筑设计专业优势,积极助力行业发展。
(供稿:饶承东创作工作室)